


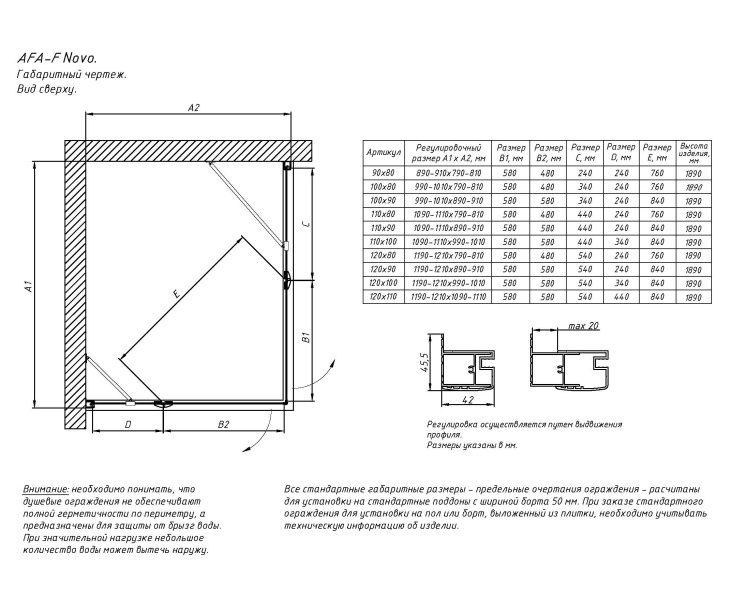
Душевой уголок Vegas-Glass AFA-F NOVO 90×80 07 02 R сочетает функциональность и современный стиль. Правосторонняя модель с двумя распашными дверями обеспечивает удобный вход шириной 76 см. Прочное закалённое стекло толщиной 6 мм с фактурой шиншилла гарантирует приватность и лёгкий уход. Алюминиевый профиль обеспечивает надёжность, а регулируемый диапазон 89–91×79–81 см упрощает установку на поддон или пол. Поддон приобретается отдельно.
Дополнительные характеристики:

Скопировано
Используйте номер купона при оформлении заказа и получите дополнительную скидку на товары «Промо»