

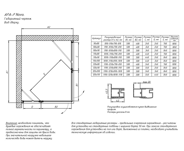
Душевой уголок Vegas-Glass AFA-F NOVO 90×80 07 Crystalvision L сочетает современный стиль и практичность. Левосторонняя конструкция с двумя распашными дверями обеспечивает комфортный вход шириной 76 см. Закалённое осветлённое стекло Crystalvision толщиной 6 мм выглядит особенно изящно и визуально расширяет пространство. Прочный алюминиевый профиль и регулируемый диапазон 89–91×79–81 см позволяют легко установить уголок на поддон или пол. Поддон приобретается отдельно.
Дополнительные характеристики:

Скопировано
Используйте номер купона при оформлении заказа и получите дополнительную скидку на товары «Промо»