


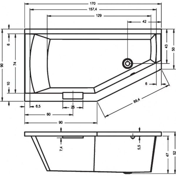
Ванна акриловая Riho Geta BA8800500000000 170х90 см имеет асимметричную пятиугольную форму и монтируется в правый угол.
Особенности ванны:
• задняя стенка – округлая и широкая;
• увеличенный объем – 310 литров;
• антискользящего покрытия нет.
Чашу ставят на каркас и закрывают декоративной панелью. Дополнительно можно купить подголовник, ручки, в том числе с функцией наполнения.
Размеры (ШхГхВ): 170 х 90 х 52 см
Дополнительные характеристики:


Скопировано
Используйте номер купона при оформлении заказа и получите дополнительную скидку на товары «Промо»