




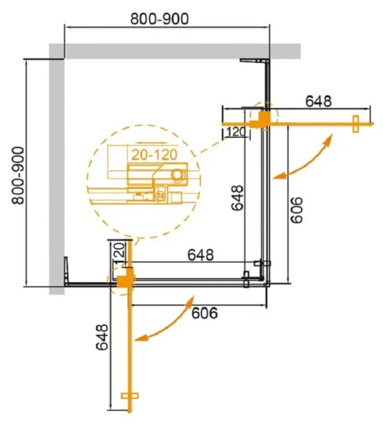
Душевой уголок Cezares SLIDER-A-2-80/90-C-Cr оснащен двумя раздвижными дверями из закаленного стекла толщиной 8 мм, соответствующего стандарту EN12150-1:2000. Профиль выполнен из анодированного алюминия (DIN17611 2007), с возможностью регулировки ширины за счет боковых профилей. Петли раздвижной конструкции позволяют регулировать ширину входа на 10 см. Универсальная ориентация подходит для установки на поддон или пол. Ресурс эксплуатации — 15 лет. Поддон приобретается отдельно.
Дополнительные характеристики:




Скопировано
Используйте номер купона при оформлении заказа и получите дополнительную скидку на товары «Промо»