



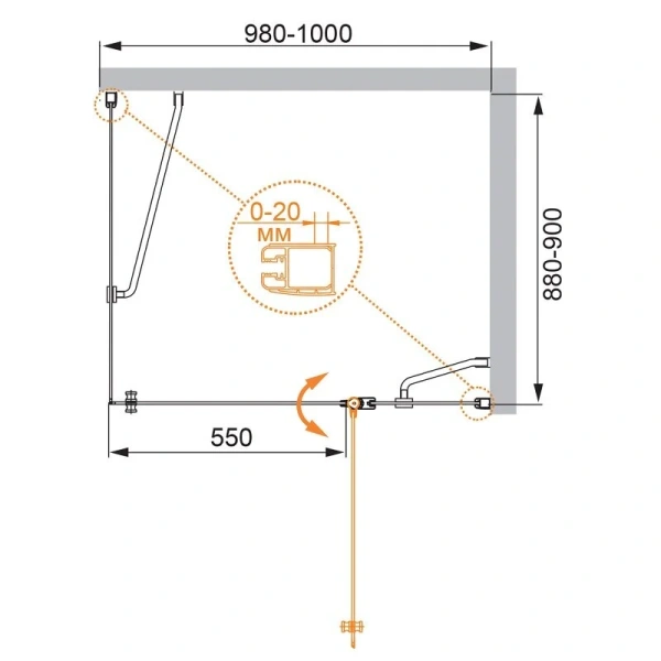
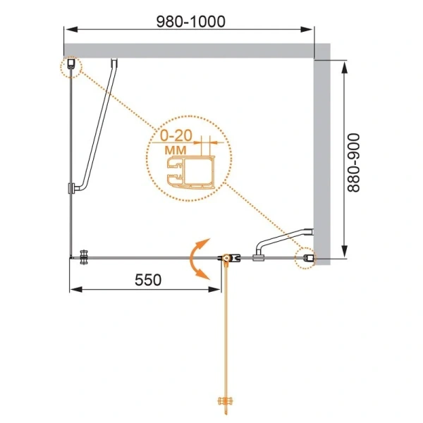
Душевой уголок Cezares ELENA-W-AH-1-100/90-P-Cr-R подходит для установки на поддон или пол с правой ориентацией. Он имеет одну секцию двери из 6 мм закаленного стекла, обеспечивающую надежность и безопасность. Ширина входа составляет 55 см, а габариты с диапазоном регулировок — 98-100 x 88-90 см. Профиль выполнен из анодированного алюминия, а регулировка ширины возможна благодаря боковым профилям. Крепления двери оснащены цилиндрической петлей с подъемным механизмом для удобства использования. Поддон приобретается отдельно. Срок службы — 15 лет, область применения — бытовая.
Дополнительные характеристики:



Скопировано
Используйте номер купона при оформлении заказа и получите дополнительную скидку на товары «Промо»