





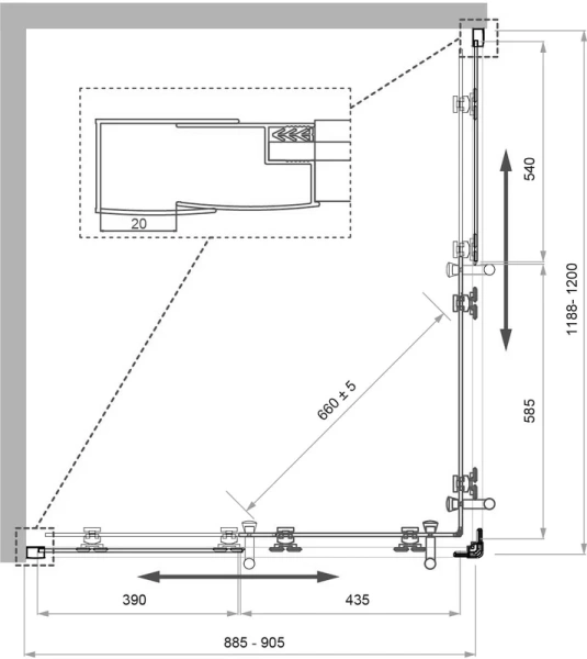
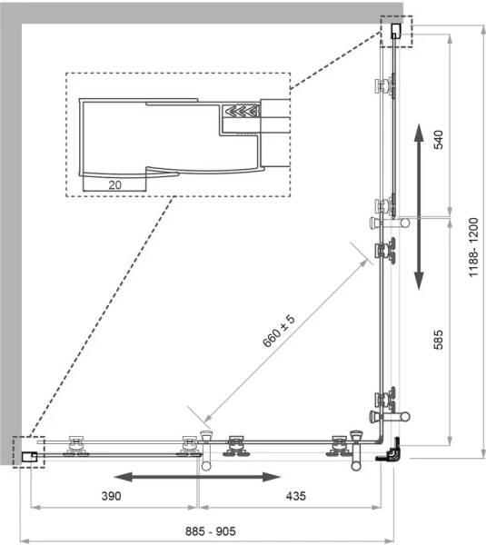
Душевой уголок BelBagno UNO-195-AH-2-120/90-P-Cr, 120x90 см, с хромированным профилем и рифленым стеклом. Ширина входа 66 см, эксплуатационный ресурс 15 лет. Состоит из двух секций, толщина стекла: 5 мм (двери), 4 мм (неподвижные части). Профиль из анодированного алюминия с глянцевой поверхностью (стандарт DIN17611 2007). Регулируемая ширина (118,8-120 см) и глубина (88,5-90,5 см). Установка на поддон или пол (поддон приобретается отдельно). Крепления на двойных подшипниковых роликах. Бытовое применение.
Дополнительные характеристики:





Скопировано
Используйте номер купона при оформлении заказа и получите дополнительную скидку на товары «Промо»