




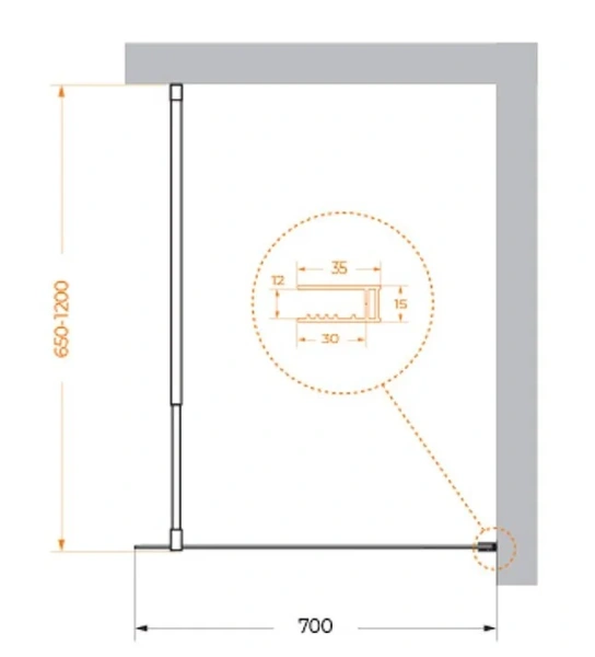
Душевая перегородка BelBagno Kraft KRAFT-L-1-70-C-Cr 70 см с хромированным профилем имеет стекло толщиной 6 мм и анодированный алюминиевый профиль с глянцевой поверхностью. Не предусмотрена антикальциевая обработка. Подходит для бытового использования с универсальной ориентацией. Поддон приобретается отдельно. Регулировка глубины возможна за счет верхнего кронштейна. В комплекте: кронштейн 65-120 см, пристенный профиль и порожек. Гарантия на резинотехнические изделия - 1 год.
Дополнительные характеристики:




Скопировано
Используйте номер купона при оформлении заказа и получите дополнительную скидку на товары «Промо»