


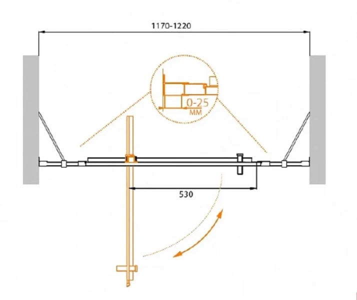
Душевая дверь в нишу Cezares Molveno 120 см с хромированным профилем сочетает стиль и функциональность. Универсальная установка на поддон или пол и регулируемая ширина (1170-1220 мм) делают её адаптивной под любые размеры. Изготовлена из закаленного стекла толщиной 6 мм и анодированного алюминия для долговечности. Широкий вход (530 мм) обеспечивает удобство использования. Антикальциевая обработка упрощает уход, а ресурс эксплуатации составляет 15 лет. Поддон приобретается отдельно.
Дополнительные характеристики:

Скопировано
Используйте номер купона при оформлении заказа и получите дополнительную скидку на товары «Промо»